File Denah Rumah Type 90 Kode 03
Halo, Sobat IDC!
Kalian lagi belajar software AutoCAD dan cari referensi desain rumah? Kami punya kabar baik untuk kamu!
Kini kamu bisa Download Denah Rumah Type 90 Kode 03 secara gratis!
Dalam berbagai format seperti PDF dan DWG (AutoCAD) yang siap diedit sesuai kebutuhanmu.
Dengan memiliki denah ini, kamu bisa lebih dengan mudah belajar desain rumah menggunakan software AutoCAD.
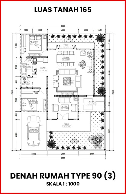
Berikut ini adalah denah rumah type 90/165
Gambar denah rumah dengan type 90/165
SYARAT & KETENTUAN DOWNLOAD FILE
Tapi ada tantangan seru nih!
Sebelum file bisa kamu download, yuk jawab kuis singkat seputar AutoCAD dan denah rumah..
Tujuannya? Supaya kamu makin paham tentang dasar perencanaan desain dan bisa memaksimalkan denah yang kamu dapatkan.
Jangan khawatir, kuis ini bisa diulang terus sampai semua jawaban benar. Dan setiap langkahnya bakal bikin kamu makin jago!
DOWNLOAD DENAH RUMAH TYPE 90
Siap? Yuk mulai sekarang dan buka akses file download eksklusifnya!
Jika salah, waktu akan bertambah. Ayo buktikan kemampuanmu!
👉 Konsultasi & Daftar Kursus
LINK DOWNLOAD FILE GRATIS
Selanjutnya. Setelah itu. Kemudian,
Denah Rumah Tinggal
Selanjutnya. Setelah itu. Kemudian,
Untuk menuju halaman dan mendownload file. Sobat Kursus bisa pilih pada list dan klik tombol downloadnya!
1. Denah Rumah Tinggal |
Selanjutnya. Setelah itu. Kemudian,
Desain 3D Modeling
Selanjutnya. Setelah itu. Kemudian,
Untuk menuju halaman dan mendownload file. Sobat Kursus bisa pilih pada list dan klik tombol downloadnya!
2. Desain 3D Modeling |
| 3D Autocad Fasad Rumah | |
| 3D Autocad Desain Interior | |
| 3D Autocad Mesin Industri | |
| 3D Sketchup Fasad Rumah | |
| 3D Sketchup Desain Interior | |
| Kumpulan 3D Desain Interior |
Selanjutnya. Setelah itu. Kemudian,
Gambar Kerja Rumah
Selanjutnya. Setelah itu. Kemudian,
Untuk menuju halaman dan mendownload file. Sobat Kursus bisa pilih pada list dan klik tombol downloadnya!
3. Gambar Kerja Rumah Type |
Selanjutnya. Setelah itu. Kemudian,
4. Gambar Kerja 1 Lantai |
| Gambar Kerja Rumah Tropis | |
| Gambar Kerja Rumah Minimalis 1 | |
| Gambar Kerja Rumah Minimalis 2 | |
| Gambar Kerja Rumah Minimalis 3 | |
| Gambar Kerja Rumah Minimalis 4 | |
| Gambar Kerja Rumah Minimalis 5 |
Selanjutnya. Setelah itu. Kemudian,
5. Gambar Kerja 2 Lantai |
Selanjutnya. Setelah itu. Kemudian,
6. Gambar Kerja 3 Lantai |
| Gambar Kerja Rumah Minimalis |
Selanjutnya. Setelah itu. Kemudian,
7. Gambar Kerja 4 Lantai |
| Gambar Kerja Rumah dan Kosan | |
| Gambar Kerja Rumah Lengkap |
Selanjutnya. Setelah itu. Kemudian,
RAB Rumah Tinggal
Untuk menuju halaman dan mendownload file. Sobat Kursus bisa pilih pada list dan klik tombol downloadnya!
8. RAB Rumah Tinggal |
| Kumpulan File RAB Rumah Tinggal |
Selanjutnya. Setelah itu. Kemudian,
Archmodels 3Ds Max
Selanjutnya. Setelah itu. Kemudian,
Untuk menuju halaman dan mendownload file. Sobat Kursus bisa pilih pada list dan klik tombol downloadnya!
9. Archmodels 3Ds Max |
Selanjutnya. Setelah itu. Kemudian,
Analisa Struktur Etabs
Selanjutnya. Setelah itu. Kemudian,
Untuk menuju halaman dan mendownload file. Sobat Kursus bisa pilih pada list dan klik tombol downloadnya!
10. Analisa Struktur Etabs |
| Analisa Ruko 3 Lantai | |
| Analisa Ruko 4 Lantai | |
| Analisa Apartemen 16 Lantai |
Selanjutnya. Setelah itu. Kemudian,
Desain Fasad Rumah
Selanjutnya. Setelah itu. Kemudian,
Untuk menuju halaman dan mendownload file. Sobat Kursus bisa pilih pada list dan klik tombol downloadnya!
11. Desain Fasad Rumah 1 Lantai |
| Desain Fasad Rumah 1 | |
| Desain Fasad Rumah 2 | |
| Desain Fasad Rumah 3 | |
| Desain Fasad Rumah 4 | |
| Desain Fasad Rumah 5 | |
| Desain Fasad Rumah 6 |
Selanjutnya. Setelah itu. Kemudian,
12. Desain Fasad Rumah 2 Lantai |
Selanjutnya. Setelah itu. Kemudian,
Desain Interior Rumah
Selanjutnya. Setelah itu. Kemudian,
Untuk menuju halaman dan mendownload file. Sobat Kursus bisa pilih pada list dan klik tombol downloadnya!
13. Desain Interior Ruang Tidur |
Selanjutnya. Setelah itu. Kemudian,
14. Desain Interior Lainnya |
| Desain Interior 01 | |
| Desain Interior 02 | |
| Desain Interior 03 | |
| Desain Interior 04 | |
| Desain Interior 05 | |
| Desain Interior 06 | |
| Desain Interior 07 | |
| Desain Interior 08 | |
| Desain Interior 09 | |
| Desain Interior 10 |
➔ WEBSITE UTAMA
Kami juga melayani :
- Kursus SketchUp Bersertifikat di Jakarta
- Kursus Desain Interior Bersertifikat di Jakarta
- Kursus Desain Arsitektur Bersertifikat di Jakarta
- Kursus Autocad dan RAB Bersertifikat di Jakarta
- Kursus Drafter Bersertifikat di Jakarta
Kursus RAB di Indo Design Center
Tags:
Denah Type 90, Denah Type 90 Terbaik, macam-macam denah type 90, file AutoCAD Denah Type 90, Denah AutoCAD Type 90, Denah Rumah Type 90, File Denah AutoCAD, Download denah type 90, file dwg denah type 90, kumpulan denah type 90, kursus autocad denah type 90, tutorial membuat denah type 90,
Denah Rumah Type 90,
Download Gambar Kerja, Download Denah Rumah 1 Lantai Lengkap Dwg, Kumpulan File Dwg Gratis, Download Gambar Kerja Dwg, Download File Autocad Rumah 1 Lantai Lengkap, Bestek Rumah, Gambar Kerja Rumah 1 Lantai Lengkap Dwg, Download Gambar Kerja Rumah 1 Lantai Lengkap, Gambar Autocad Rumah, Gambar Kerja Rumah 1 Lantai Dwg, Gambar Kerja Rumah Type 90 Dwg, Bestek Rumah Type 90 Lengkap, Denah Rumah Autocad Download, File Autocad Rumah 1 Lantai Lengkap, Bestek Rumah Type 90, Bestek Rumah 1 Lantai, Download Gambar Kerja Ruko 1 Lantai Dwg, Download Desain Rumah Autocad Gratis, Download Rumah Type 90 Dwg, Download Gambar Kerja Rumah 1 Lantai Minimalis Dwg, Detail Kusen Aluminium Dwg, Download Gambar Kerja Rumah 1 Lantai Lengkap Dwg, Gambar Kerja Rumah 1 Lantai Dwg, Download Denah Rumah Autocad, Gambar Kerja Apartemen Dwg,
Potongan Rumah 1 Lantai Dwg, Download Gambar Kerja Masjid Dwg, Gambar Kerja Ruko 1 Lantai Dwg, Download Gambar Kerja Rumah 1 Lantai Dwg, Download File Autocad Rumah 1 Lantai Lengkap, Download Gambar Kerja Rumah Type 90, File Autocad Rumah Type 90, Download File Autocad Dwg Rumah, File Autocad Rumah 1 Lantai, Download Denah Rumah Type 90 Autocad, Rumah 1 Lantai Dwg, Download File Autocad Rumah 1 Lantai Lengkap Dwg, Download Gambar Kerja Rumah Type 90 Dwg, Gambar Kerja Dwg, Gambar Kerja Rumah Type 90, Kumpulan File Dwg, Bestek Rumah Tinggal Download, Download File Cad Rumah Type 90, Gambar Kerja Pagar Dwg, Download Detail Pondasi Tapak Dwg, Gambar Kerja Rumah Type 90 Dwg, Gambar Kerja Rumah Type 90 Lengkap,



